首页
智慧新城
现房
住宅
商铺
公寓
全部(3)
3室(1)
4室(2)
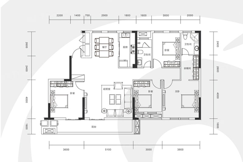
户型标题 :
D户型[在售]
户型面积 :
建面约146.04㎡
户型详细 :
4室2厅1厨2卫
户型类型 :
住宅户型
户型朝向 :
户型标签 :
楼盘其它户型
在售
4室 2厅 2卫
建面约 : 146.30㎡
在售
4室 2厅 2卫
建面约 : 146.04㎡
预约看房
提交信息预约看房
电话咨询
隐私保护加密拨打
确认
我已阅读并同意
《用户服务协议》
请留下您的手机号码
为了保证您的权益,
请留下您的手机号码,
我们会严格保护您的信息安全。
确定
我已阅读并同意
《用户服务协议》
和
《免责声明》