安化县梅山御龙湾4室2厅2卫户型图-搜新房
期房 住宅商铺
全部(3)
3室(1)
4室(2)
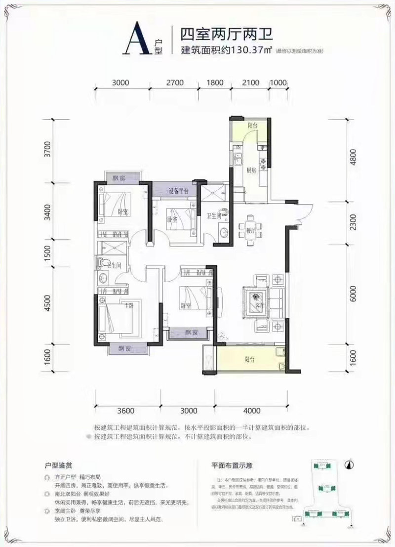
为您提供梅山御龙湾A户型鉴赏
A
户型标题 :  A户型[在售]
户型面积 :  建面约130.37㎡
户型详细 :  4室2厅1厨2卫
户型类型 :  住宅户型
户型朝向 : 
户型标签 :